대구농수산물도매시장 이전사업 예타 대상 선정
대구광역시가 추진하는 첨단 선진 물류 도매시장 조성에 청신호
3일, 대구광역시는 지난달 31일, 기재부 2024년 제7차 재정사업평가위원회에서 대구농수산물도매시장 시설현대화사업이 예비타당성조사 대상으로 선정됐다고 전했다.
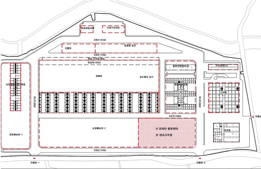
도매시장 이전 배치도
대구광역시는 지난 4월 농림축산식품부 공영도매시장 시설현대화사업 공모사업에 선정된 이후, 기재부 예비타당성조사(이하 예타) 대상 사업으로 선정됐다고 밝혔다.
대구시는 민선 8기 공약사업으로 대구농수산물도매시장 하빈면 이전을 추진해 왔으며, 사업계획을 충실하게 준비해 지난 9월 예비타당성검토 요구서를 농식품부에 제출했고, 최종적으로 예타 대상으로 선정됐다.
시설현대화 사업비는 총 4,460억 원으로 국비 1,004억 원, 지방비 3,456억 원을 투입할 계획이며, 2032년 개장을 목표로 하고 있다.
이전하는 도매시장은 최적 동선을 위한 일방향 프로세스 기능 배치, 공동선별장 및 청과동 자동창고 설치, 통합 경매장 설치, 공동배송장 및 온라인물류센터 설치 등으로 출하자와 소비자 등 이용자들의 편의를 제고하고, 통합물류기능 확충과 스마트 물류체계 도입으로 첨단 도매시장을 건립할 계획이다.
북구 매천동에 위치한 대구농수산물도매시장은 전국 3위 거래규모의 거점 공영도매시장으로, 한강 이남 농수산물 유통의 중심 역할을 해오고 있다.
개장 36년이 경과해 시설 노후화로 인한 안전사고 위험 상존, 물류 동선의 비효율성, 설계 물량 대비 200%에 육박하는 초과거래로 인한 시설 공간 부족, 쓰레기 악취 문제 등의 문제를 안고 있어 도매시장 이전을 통한 근본적 문제해결이 시급한 실정이다.
김정섭 대구광역시 경제국장은 “이번 시설현대화 사업 예타 대상 선정으로 대구농수산물도매시장 이전사업이 더욱 탄력을 받게 됐다”며, “단순히 물리적 개선을 넘어 유통환경 변화에 대응하는 새로운 패러다임을 만들어 나가도록 하겠다”고 말했다.


